A renovated architecture exterior in Seattle, Washington

HE SHED_SHE SHED

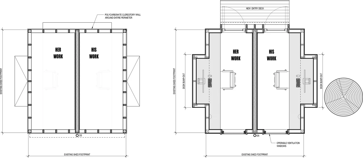
The he shed_she shed began as an e-mail from former clients with the subject “Tiny Project?”

With a toddler, a baby on the way, and a compact 1919 bungalow imminently running tight on space, our work from home clients needed a serious upgrade to their existing office setup. Until now they had been remote co-working from a cramped and dark 110sf backyard shed.

The request was for two autonomous, acoustically separated workspaces that could uplift the everyday experience and place specific attention on good, even light for frequent video calls.

They wanted to build it themselves with the help of a retired family member, it needed to be inexpensive, and could we locate it on an existing shed platform in a corner of the property, shoehorned between an existing heritage tree and privacy fence.

We took the tall order somewhat literally...

The resulting space is uniquely private - acoustically and visually - yet feels intrinsically connected to the landscape and changes of the day and season. And of course, is great for video calls.