ISLAND TIME

ISLAND TIME

PROJECT DETAILS

  • Type:

    New construction vacation home

  • Location:

    Orcas Island, WA

  • Area:

    1,750sf

  • Contractor:

    Bluebird Builders

  • Photos:

    Andrew Pogue

  • Project by:

    Heliotrope Architects

  • Role:

    Tony Salas - Lead Design + Project Manager @ Heliotrope Architects

Orcas Island vacation home designed to work within a limited construction budget for a retired couple and their family. A traditional gable form is bent along the hilltop focusing each end on distant mountain or water views. A detached garden shed acts as an entry portal to the main house while creating a deer-proof planting zone as part of a carefully choreographed entry sequence. A wooden boardwalk begins at the point of arrival and runs continuous through the pivot point (entry) of the house, cantilevering out into a densely forested ravine at the back of the property.

The landscape around Orcas Island, WA
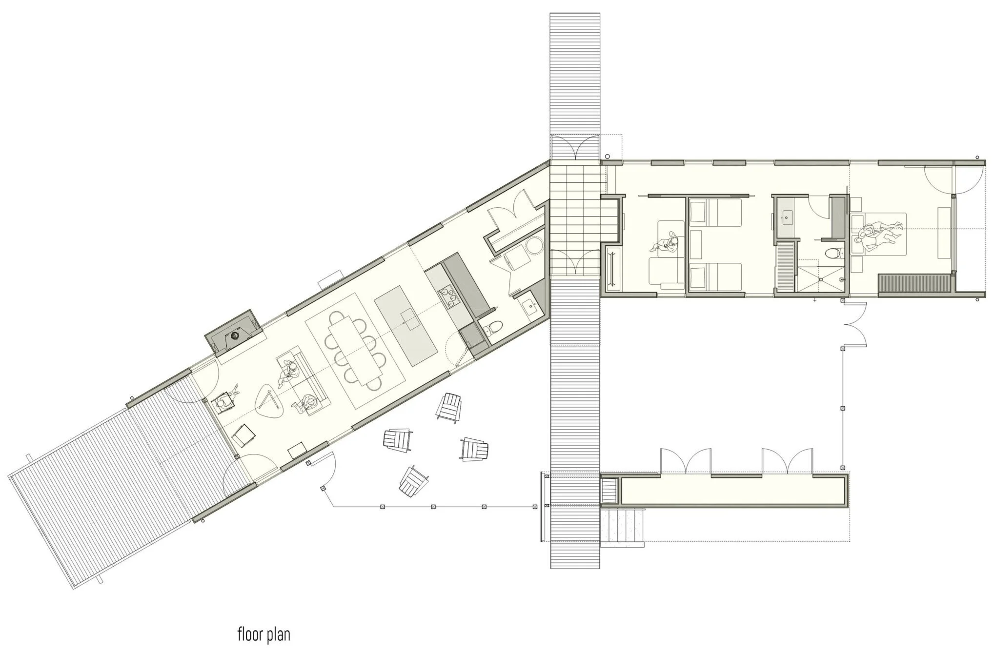
The Plans for the Orca's Island Project
island time orcas island vacation home entry boardwalk
The landscape around Orcas Island, WA
The landscape around Orcas Island, WA
An exterior shot of Island Time in Orcas Island, WA
An exterior shot of Island Time in Orcas Island, WA
An exterior shot of Island Time in Orcas Island, WA
An interior shot of Island Time in Orcas Island, WA
An interior shot of Island Time in Orcas Island, WA
An interior shot of Island Time in Orcas Island, WA
An interior shot of Island Time in Orcas Island, WA
An interior shot of Island Time in Orcas Island, WA
The landscape around Orcas Island, WA