VIEW ALLEY

VIEW ALLEY

PROJECT DETAILS

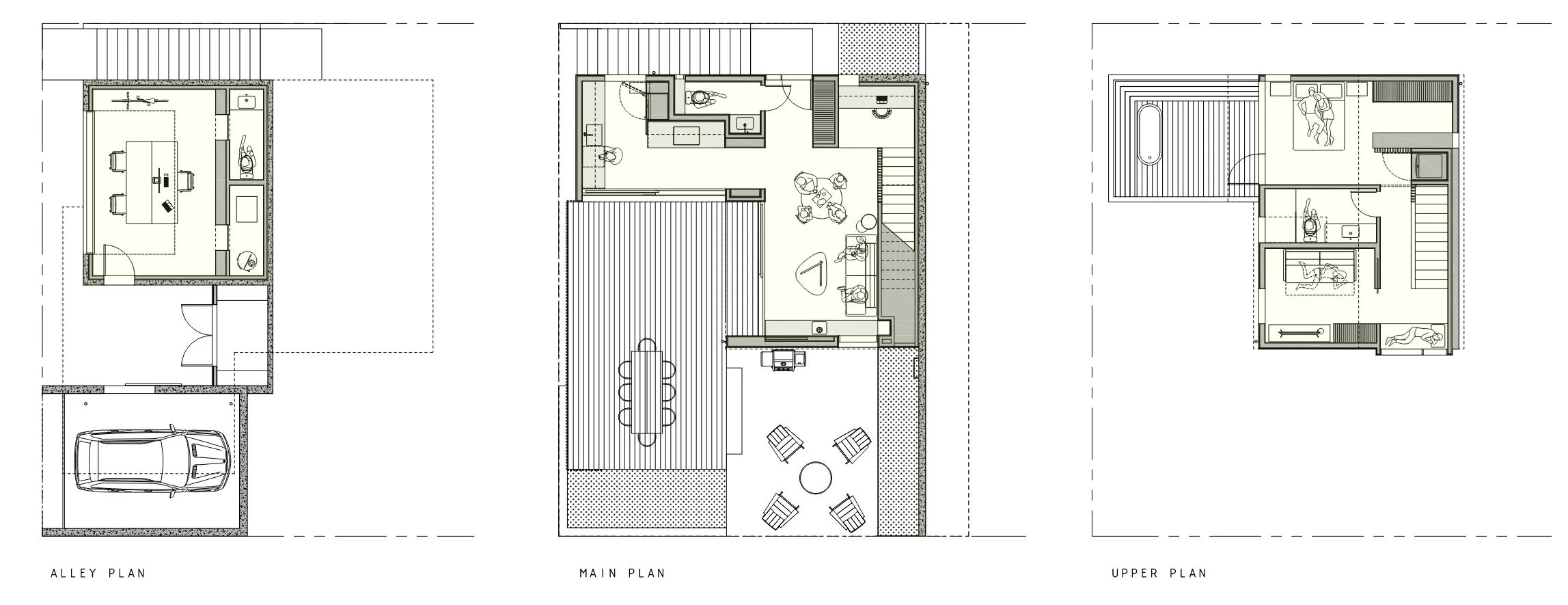
Off an alley in the Queen Anne neighborhood of Seattle, this 1,250 sf two bedroom two bath backyard DADU sits above an existing garage built in 1910. The topography is such that we are able to take full advantage of expansive southwest views over Elliott Bay towards the Olympic Mountains as the house terraces up the hillside.

A rendering of the View Alley project in Seattle, WA
The plans behind the View Alley project in Seattle, WA
view alley front view
A rendering of the View Alley project in Seattle, WA
A rendering of the View Alley project in Seattle, WA
A rendering of the View Alley project in Seattle, WA
A rendering of the View Alley project in Seattle, WA